成为受客户尊重、让员工自豪的行业领跑者
新闻详情

赋能青春力量    淬炼技能尖兵——直击中国石油炼化青年岗位核心操作技能培训班现场

发表时间:2025-11-06 13:53

在中国石油加快世界一流企业建设的征程中,作为引领炼化产业高质量发展的的人才培养工作,一股强劲青春的动能正在被系统性地聚合和催化,这不仅是一次技能的淬炼,更是一场为青年技能人才成长精准赋能的实战演练。9月初--11月中旬,由中国石油集团公司主办,中国石油四川石化公司承办,北京东方仿真公司与西南能化培训学校提供专业支持的大型系统培训圆满收官。此次“炼化青年岗位核心操作技能培训班”多期轮训,覆盖26家炼化企业,400名青年精英齐聚彭州。

一、大师领航,构建“四位一体”培养体系

培训的成功,始于周密的设计。本次培训集结了26名中石油集团技能大师与东方仿真资深培训专家,组成“大师团队”,共同论证并打磨出一套科学、严谨的培训方案。他们以“强化核心技能、选拔竞赛尖兵”为目标,深度融合行业安全规范,创新构建了“理论+实操+单元仿真+虚拟作业”四位一体的培训体系。这套体系将培训过程细化为多个考核模块,从理论机考到单元实操,从仿真开工到虚拟安全作业,确保每一位学员的理论知识和岗位技能都在闭环训练中得到全面提升。

图片 1.jpg图片 2.png图片 3.jpg图片 4.png


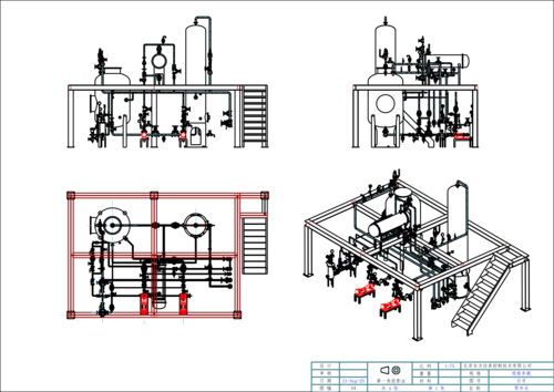
二、硬核基地,真实还原炼化实战场景

走进刚建成不久的实训基地,仿佛置身于一个微缩的现代化炼化工厂。这里不再是传统的教室,而是集“真实装置+虚拟仿真”于一体的练兵场。项目建设团队从图纸审核到现场配置,对每个关键节点都进行了严格把控。基地配备了两套高还原度的实训装置——离心泵、换热器、精馏塔、储罐等典型设备一应俱全,采用水与空气模拟真实物料,每套实训装置可进行从开停工到故障处置的全场景训练。一旁的设备展示区,半剖的设备内部结构清晰可见;电脑机房中,单元仿真与3D虚拟作业软件平稳运行;多媒体教室内,理论授课与案例研讨交替进行。更有消防、气防、心肺复苏等教具严阵以待,为安全应急训练保驾护航。

图片 5.png图片 6.png图片 7.jpg图片 8.jpg


三、高效攻坚,打造标准化标杆课程体系

课程设置与师资配备是培训的灵魂。面对繁重的开发任务,东方仿真师资培训项目组采用了“分组攻坚+示范备课”的模式,依托先进的虚拟仿真与数智化培训平台,快速赋能师资队伍。在短时间内,通过“课程梳理→展示研讨→定版升级”的高效开发,完成了12门课程的标准化升级,最终形成了涵盖9门实操课程、4个仿真软件及2个数智化3D软件的标准化授课资料库。与此同时,26名技能大师通过“培训逻辑研讨→标杆课程梳理→备课再展示”的流程,迅速组建起12支标杆课教学团队。他们将数十年积累的现场经验融入教学,确保了培训内容既标准规范,又紧贴实战。

图片 9.png图片 10.png图片 11.jpg


四、以训促学,操作尖兵强技能

培训现场,处处是知识与汗水交织的练兵场景。在装置开工、离心泵切换的实操中,学员们的动作从生涩到娴熟规范;在模拟泄漏着火的紧急场景下,他们迅速完成报警、工艺切断、转移伤员、心肺复苏等一系列操作,应急能力在反复演练中稳步提升;在特殊作业隐患排查训练中,风险辨识的“火眼金睛”被逐渐擦亮。

培训采用“理论精讲+实操训练+复盘总结+自习回顾”的模式,结合案例研讨与模拟演练,确保学用无缝衔接。东方仿真技术团队全程驻场,为实训装置与虚拟系统的稳定运行保驾护航,让科技为人才培养注入硬核支撑。

图片 12.png图片 13.png图片 14.jpg图片 15.png


五、收获与展望,凝聚成长最强音

培训收官之际,覆盖26家单位80余名学员的深度调研,清晰地勾勒出这场技能淬炼的丰硕成果与未来期待。

技能与意识双提升,是学员们最集中的反馈。来自大连西太的郭星辰说:“现场操作类培训锻炼了我更详细周密地考虑实际操作中的步骤并辨识风险;应急技能则人人必会,多次严格练习了心肺复苏;安全作业提示了大量平日忽视的安全要点。”他的话道出了许多人的心声——“规范”、“风险”和“应急”成为大家结业后带回岗位的关键词。

跨界融合拓视野,是本次培训的又一亮点。来自广东石化的白朔琦表示:“通过与不同装置、不同岗位的学员交流,对炼化装置的上下游有了深度了解。”这种跨越企业、跨越专业的思维碰撞,打破了日常工作的认知壁垒,让学员们对“全流程”有了更立体的感知。

图片 16.jpg图片 17.jpg图片 18.jpg图片 19.png

本次培训成效显著,为进一步贴合学员成长需求、升级培训品质,我们结合大家的积极反馈,明确了后续优化提升的核心方向:

在专业内容深化上,我们将拓展大型机组原理与结构解析、事故处理实操要点、行业标准深度解读及 HAZOP 分析等进阶模块,助力学员夯实专业根基、提升核心技能;在教学形式创新上,我们计划丰富现场实地教学场景,增加设备结构拆解讲解,并引入 VR 模拟、高处坠落情景演练等沉浸式体验项目,让理论学习与实操应用更高效融合。

这些针对性的调整升级,既是对学员学习热忱的积极回应,更旨在持续打磨高质量培训体系,为学员提供更具价值、更贴合实际需求的学习体验,推动培训实效再上新台阶。


六、领导关怀,擘画青年成长新蓝图

本项目自启动至收官,始终得到各级领导的高度重视与持续关怀。在项目各关键阶段,中石油集团公司人力资源部和四川石化领导多次莅临现场,听取项目设计,察看实训设施,与学员、师资和技术团队深入交流。他们对基地的资源建设水准给予高度评价,对东方仿真技术支持团队所展现出的专业精神与职业素养表示赞赏,并对青年人才的成长寄予厚望。

至此,这场以“专家领航+硬核资源+精准课程+专业师资”四位一体的培训模式,树立了“以赛促训、以训提能”的青年技能培养样板。它不仅为中国石油炼化业务储备了一批理论扎实、实操过硬的青年技术尖兵,也必将在新时代产业工人队伍建设的征程中,写下了充满青春力量的新篇章。

图片 20.png图片 21.png图片 22.jpg图片 23.png

分享到: